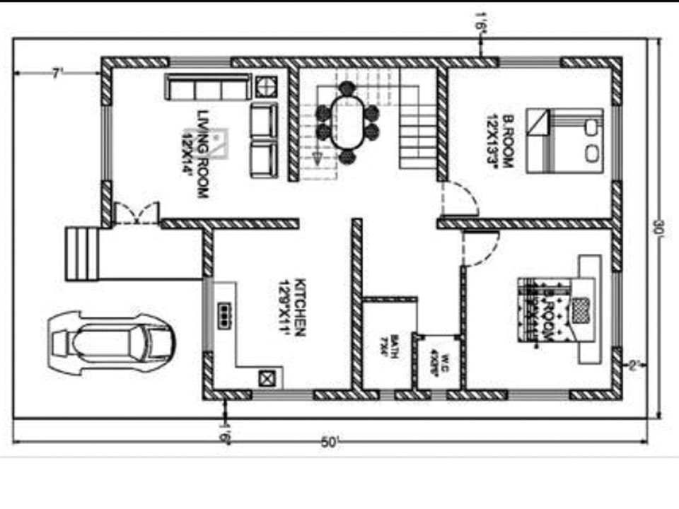
Layout Development
Construction Process Organized :The efficient planning of site space through the course of a construction project is referred to as site layout planning. Due to its impact on safety, productivity and security on construction sites, several site layout planning models have been developed in the past decades.
Site layout plans are prepared by contractors as part of their mobilisation activities before work on site commences.
They are a crucial part of construction management, as sites can be very complex places involving the co-ordination and movement of large quantities of materials as well as high-value products, plant and people. Effectively and accurately laying out a site can help ensure that the works are undertaken efficiently and safely.
Careful sizing and positioning of temporary facilities can help reduce travel times, congestion, waiting times, and so on, and help to make the site a more effective workplace with better worker morale.
You're in Good Hands.
Five Points that define Our Reliability.- Market Leader since 2015
- Positive Results within Deadlines
- 100% Reliability & Guarantee
- Dedicated Professional Team of 20+
- Unmatched After Project Completion Support
