Plan and Elevation
We have got you Covered :As buildings are rarely simple rectangular shapes in plan, an elevation drawing is a first angle projection that shows all parts of the building as seen from a particular direction with the perspective flattened.
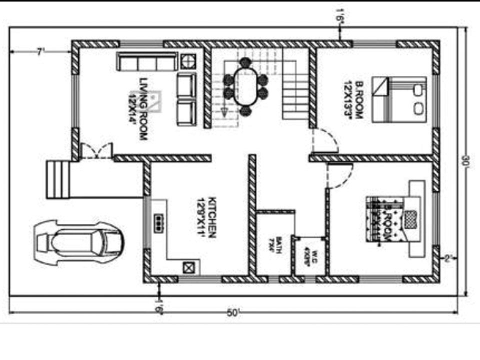
Plan
Plan drawings are a specific type of drawing architects use to illustrate a building or portion of a building. A plan is drawn from a horizontal plane looking down from above. This is as if you sliced through a space horizontally and stood over looking down on it. Plans are a common design drawing and technical architectural or engineering convention for graphic representation of architecture. With the exception of plan perspectives, plan drawings are orthographic projections. This means they are not drawn in perspective and there is no foreshortening.
Elevation
Elevation drawings are a specific type of drawing architects use to illustrate a building or portion of a building. An elevation drawing is an orthographic projection drawing that shows one side of the house. The purpose of an elevation drawing is to show the finished appearance of a given side of the house and furnish vertical height dimensions. Four elevations are customarily drawn, one for each side of the house.You're in Good Hands.
Five Points that define Our Reliability.- Market Leader since 2015
- Positive Results within Deadlines
- 100% Reliability & Guarantee
- Dedicated Professional Team of 20+
- Unmatched After Project Completion Support
